Appartamento
€ 155.000
Taranto
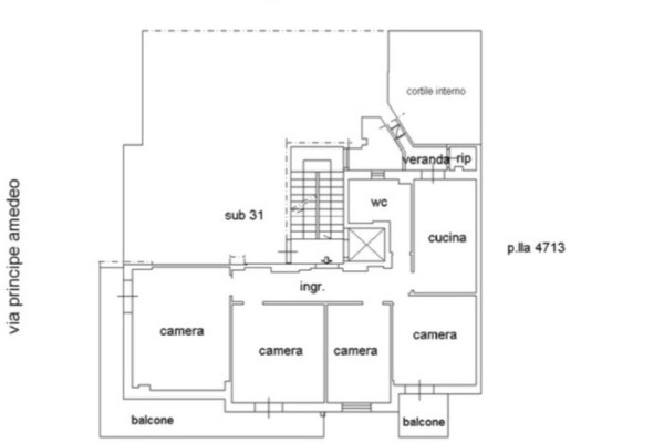
Taranto - via tito minnitiin via minniti nelle strette vicinanze di viale viriglio, in contesto con corte, proponiamo in vendita luminoso appartamento di recente ristrutturazione di circa 100 mq posto al quarto piano con ascensore e con vista mare. L' appartamento, finemente ristrutturato, si compone da un ingresso , soggiorno con angolo cottura, salotto in open space con cucina, 2 ampie camere da letto di cui una con cabina armadio e con accesso sul balcone con vista mare, studiolo, 2 bagni di cui uno patronale con doccia e uno di servizio, ripostiglio. Rifiniscono l'appartamento l. . .

















109 mq
3
1