Locale Commerciale
€ 1.000
Taranto
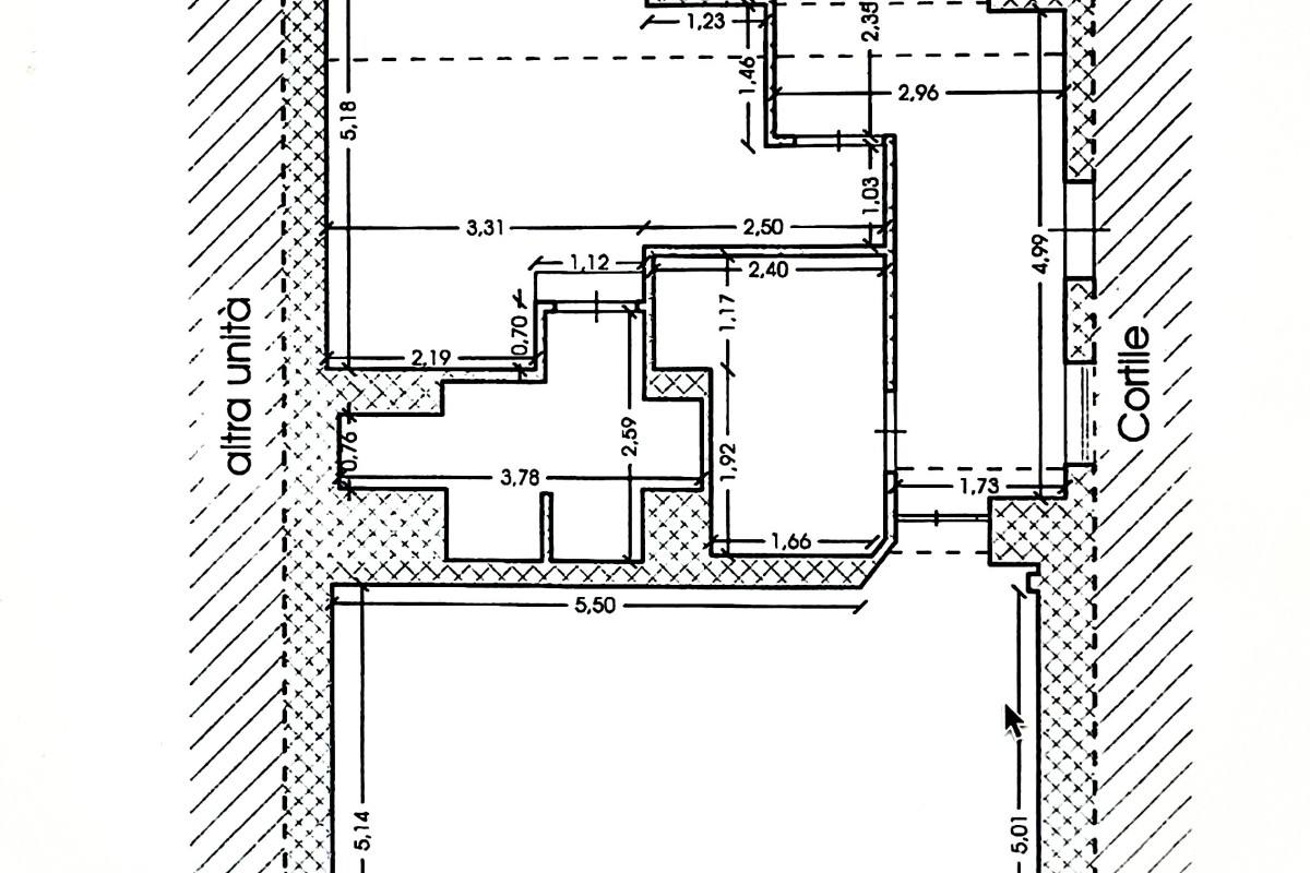
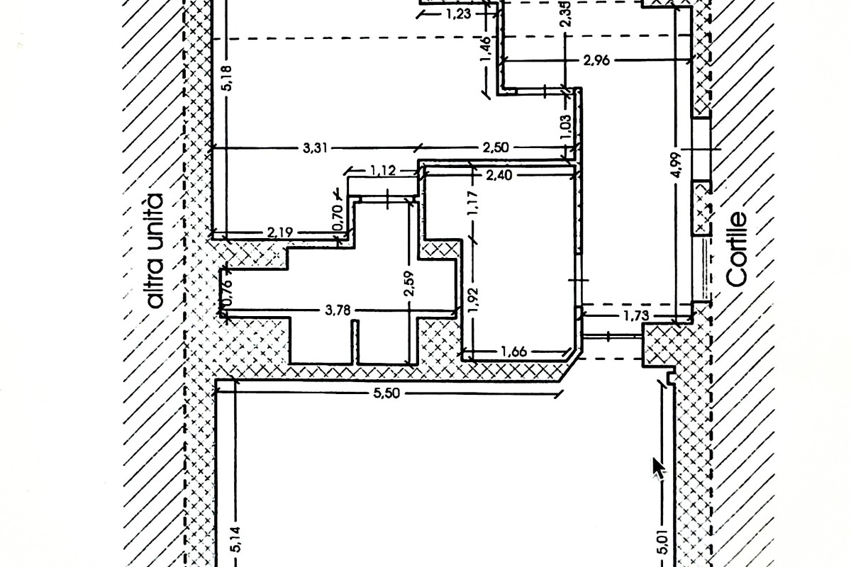
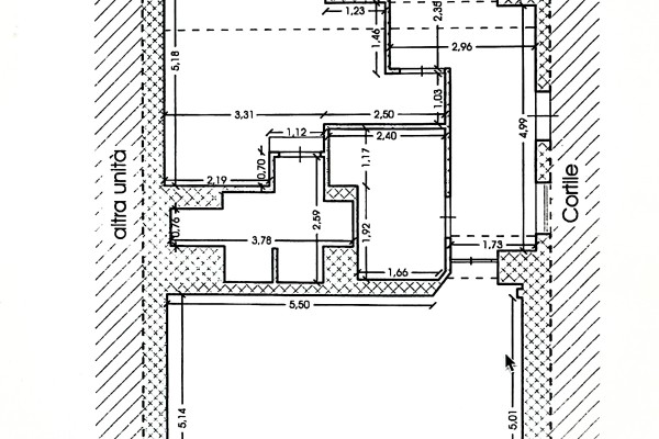
Taranto - via molise nel servitissimo rione italia montegranaro, a pochi passi dalle principali strade del quartiere e precisamente in via molise, proponiamo la locazione di un locale commerciale posto al piano terra con ingresso indipendente su strada, avente una metratura interna di 175 mq circa ed un' altezza interna di circa 4,00 mt. L'immobile, personalizzabile secondo le esigenze del conduttore, attualmente si compone di un ampio vano in open space, un vano ufficio e di due bagni. E' dotato di ben 3 ampi vetrate fronte strada che assicurano all'immobile un'ottima lumi. . .

















410 mq